【黃石】怡康花園
更新時間:2019-03-26
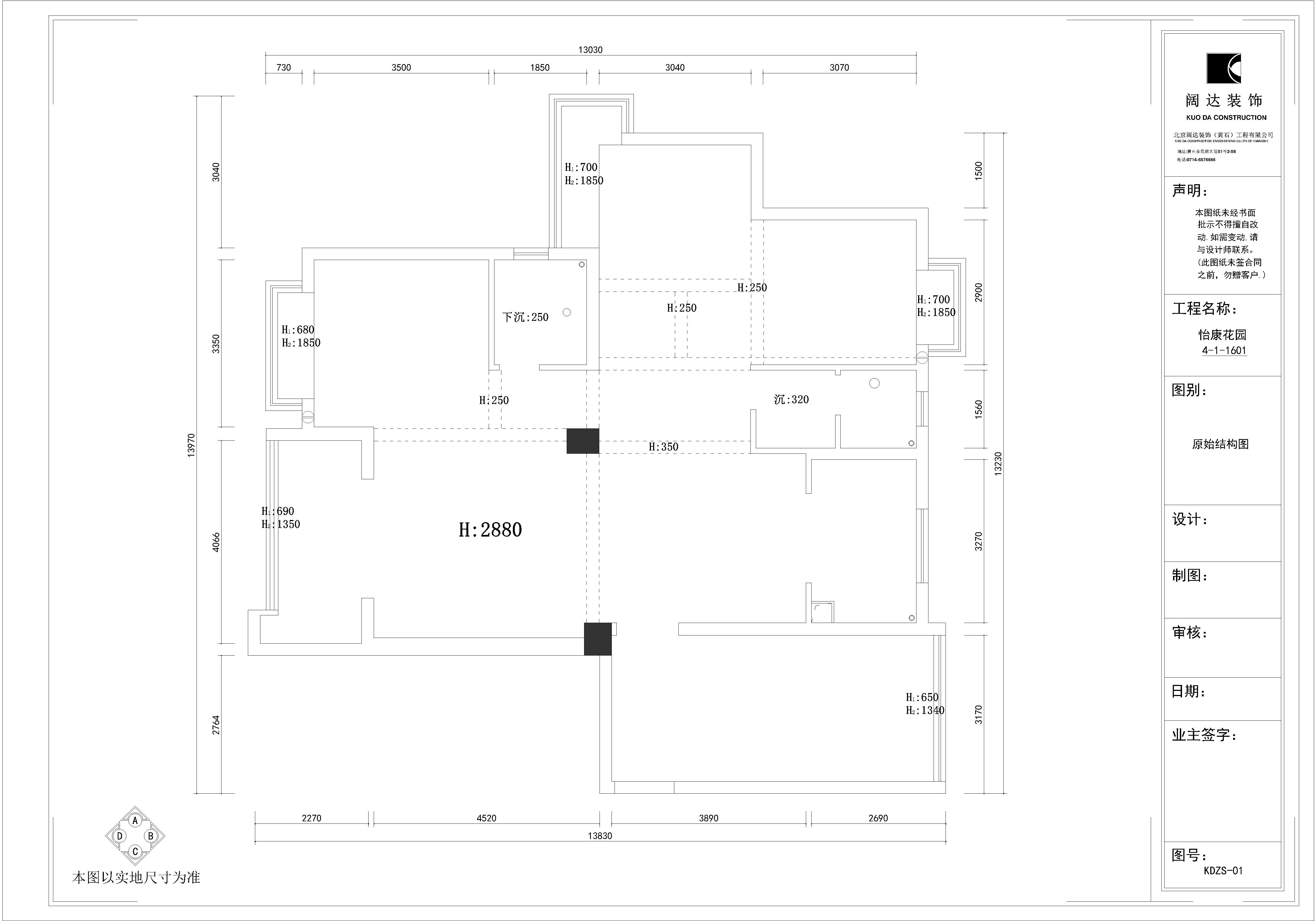
| 設計風格 | 簡歐 | 戶型案例 | 四室兩廳一廚兩衛 | 案例面積 | 147 |
|---|---|---|---|---|---|
| 樓盤名稱 | 怡康花園 | 所在城市 | 黃石市 | 案例造價 | 32萬 |
| 設計師 | 桂偉 | ||||

案例說明:
本案例采用簡歐風格裝修,客戶為一對時尚年輕人,比較喜歡年輕時尚的新鮮事物。歐式風格為大部分女性喜愛的風格,裝飾的柔美性,家具的曲線美,是年輕人展示自我的舞臺。結合開放式的裝修模式,把空間的靈動性完美的展現出來。同風格案例:更多>>
同面積案例:
| 客戶服務熱線: | 010-84580331 | 加盟咨詢熱線: | 010-82272748 | (工作日:9:00-18:00) |
預約加盟
預約裝修
客戶服務
返回頂部
闊達標準工程,一看就不同!
全國累計已有一百余家加盟公司
免費獲得家裝服務
全國各地業主都在申請!
闊達裝飾竭誠為您服務!
| 設計風格 | 簡歐 | 戶型案例 | 四室兩廳一廚兩衛 | 案例面積 | 147 |
|---|---|---|---|---|---|
| 樓盤名稱 | 怡康花園 | 所在城市 | 黃石市 | 案例造價 | 32萬 |
| 設計師 | 桂偉 | ||||
