【功能改造】溫暖
更新時間:2022-11-25
| 設計風格 | 戶型案例 | 案例面積 | 100㎡ | ||
|---|---|---|---|---|---|
| 樓盤名稱 | 中央公館小區 | 所在城市 | 江蘇-丹陽 | 案例造價 | |
| 設計師 | 拾一 | ||||

案例說明:
家是溫暖的陽光,烘干潮濕的心情;
家是清涼的泉水,滋潤干涸的心田;
家是和煦的春風,吹走煩惱的愁緒。
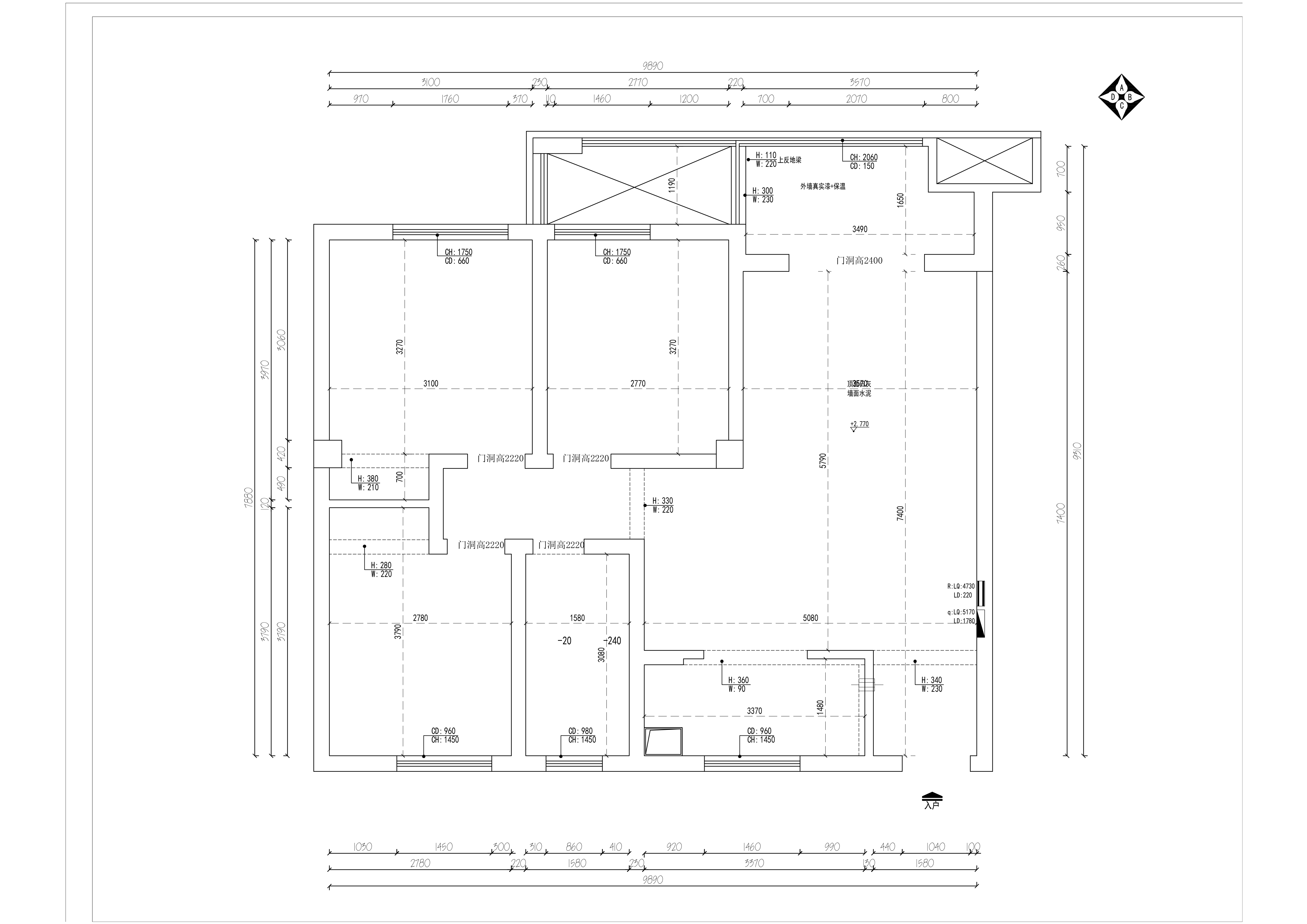
本案位于江蘇省丹陽市中央公館小區,面積100㎡,改善型住房。業主是一對60歲的夫妻,追求高品質生活。
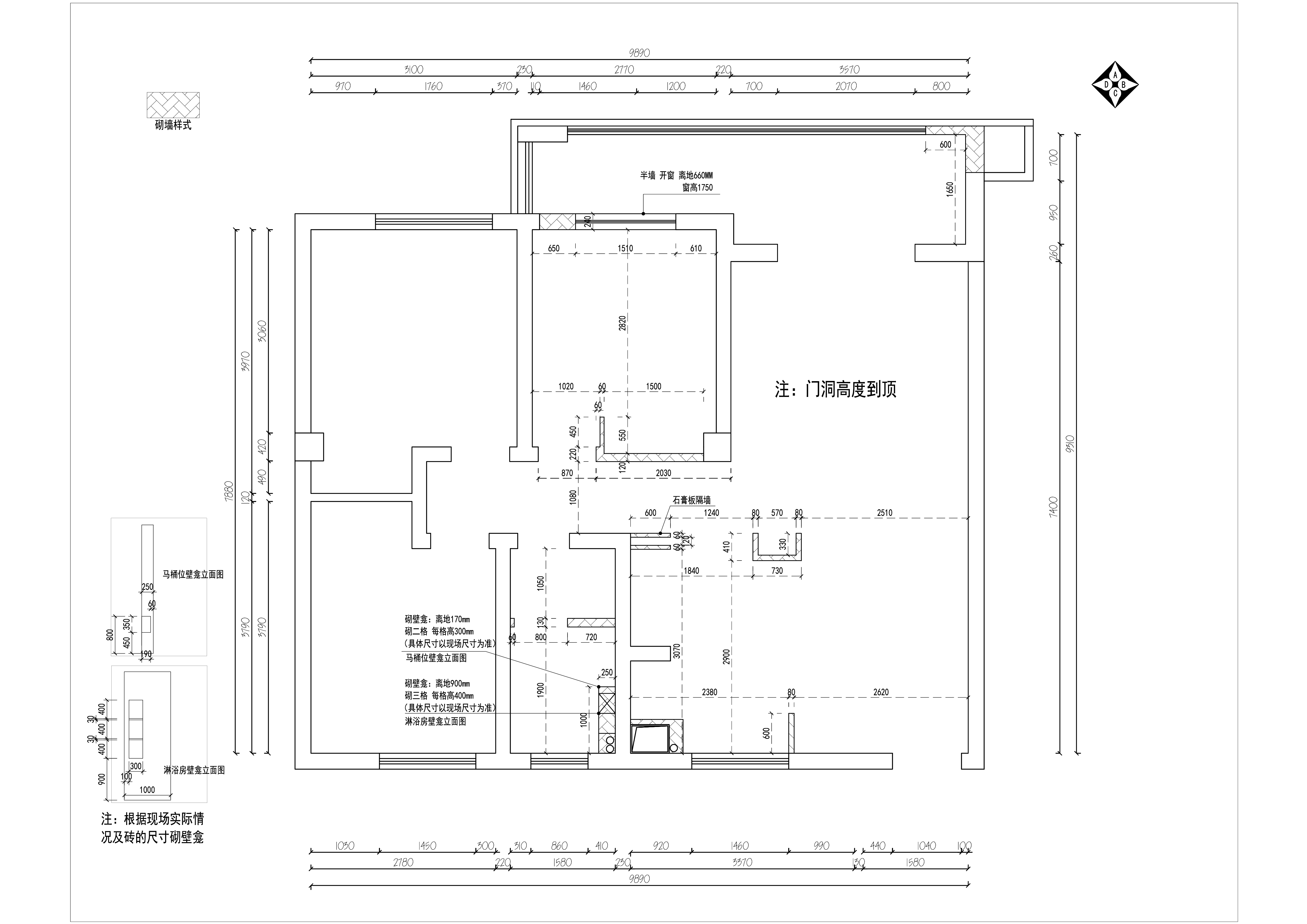
整個戶型中規中矩,設計師在功能分區時,大膽地打破傳統廚房餐廳概念,釋放空間。
拆除了門廳左側墻壁,使得客廳、餐廳、廚房融為一體,很好地提升了空間感,入門后有寬敞的視野,不會被局限。
將原本的封閉式廚房改為了半開放式廚房,中廚與西廚功能合并,但是在使用上又互不打擾,島臺連接餐桌的處理既增加操作空間也賦予了空間美感。
為了增大視覺以及活動空間,將餐廳的視角與西廚連為一體,中島式的設計在餐廳增加了社交趣味的同時,還增加了餐廳的儲物收納。
減少功能區間的物理隔斷代之以結構、層次上的感官調配空間導向作用,加強了區域儀式感,客廳、餐廳之間各有姿態。
臥室適配于睡眠空間的淺淡色彩,除舒適度以外,夾雜著設計的婉轉。光與氣、觀與感的通透,展現更豐富的空間故事性。
核心亮點:打破空間限制,將客廳、餐廳、廚房融為一體,提升了空間美感及社交趣味。
同風格案例:更多>>
同面積案例:
















京公網安備 11010802032436號